
凯德龙之梦·闵行广场位于沪闵路七莘路口,临近轨道交通1号线、5号线,距离中环线车行仅需十几分钟,立体交通联通市区与闵行,交通十分便捷。该广场大体量、高标准,该楼独特的挑空设计,十分大气;通透的玻璃幕墙材质保证了良好的采光,加之其强大的商业、餐饮配套,使其成为闵行为数不多的高档写字楼,未来也必将是闵行区的新地标。

总高:36
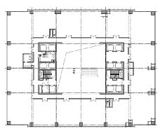
整层面积(㎡):1842
吊顶高度(m):2.7
得房率:70%
电梯:品牌:奥的斯, 客梯数:10
货梯数:2
空调:VAV 中央空调, 开放时间:未定
交房标准:金属吊顶, 乳胶漆墙, 架空地板, 玻璃门
员工餐厅:无
地 址: 沪闵路6088号,近七莘路
地 铁: 距1号线,5号线莘庄站步行5-10分钟
公 交: 莘团线 莲庄专线 莘春线 徐闵线 沪金线
徐闵夜宵线